LOCALE FRONTE STRADA PRINCIPALE

Genazzano (RM) Codice: RM12701 140mq
€ 900,00
Via Pio XII, 95 00033 - Cave (ROMA)
3755514897
3385258332
069507160
069507062
cave@mediazionecasa.com
Richiedi Informazioni
* Consenso al trattamento; Informativa sulla privacy
Invia
Descrizione

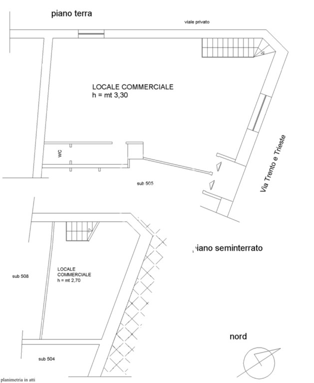
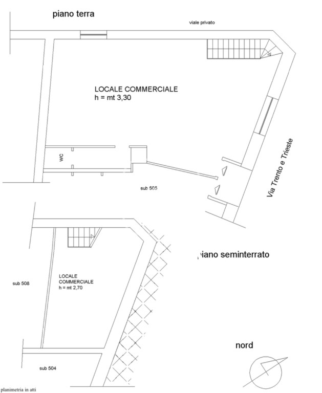
MediazioneCasa propone in affitto locale commerciale sulla via principale di Genazzano, precisamente Via Trento e Trieste. Immobile con entrata indipendente e vetrina fronte strada, in posizione angolare, posto su due livelli e composto da grande ambiente, con bagno ed antibagno più ambiente al piano interrato. Parcheggio gratuito nelle vicinanze. Il locale è dotato di un controsoffitto con faretti, creando un'atmosfera accogliente e moderna. Inoltre, la posizione angolare e la facciata offrono ulteriori opportunità di promozione visiva. Situato vicino a bar, supermercati, farmacie, banche e altre attività commerciali, questo locale è ideale per chi cerca di avviare o espandere il proprio business in una zona dinamica e ben servita. Non perdere questa opportunità unica! Contattaci per maggiori informazioni e per organizzare una visita.


Dettagli Proprietà
  • Nazione: Italia
  • Regione: Lazio
  • Provincia: ROMA
  • Comune: Genazzano
  • Località: Genazzano
  • Mq: 140
  • N. Vani: 3
  • N. Camere: 2
  • N. Bagni: 1
  • Tipologia: Locali Commerciali
  • Piano: Terra
  • Terrazzo (mq):
  • Giardino (mq):
  • Ascensore: No
  • Piscina: No
  • Stato: Libero
  • Accesso: Indipendente
  • Riscaldamento: Autonomo
  • Posto Auto: -----
  • Vista Panoramica: No

Classe Energetica
  • Indice Prestazione Energetica: N.D.

Planimetrie