FRASCATI CENTRO STORICO APPARTAMENTO CON TERRAZZO

Frascati (RM) Codice: RM12585 80mq
€ 285.000,00
Via del Casale del Finocchio 26 00132 - 00132 (ROMA)
3801949881
0689810686
3334078697
graniti@mediazionecasa.com
Richiedi Informazioni
* Consenso al trattamento; Informativa sulla privacy
Invia
Descrizione

🏡 Attico nel cuore del centro storico di Frascati – adiacente Piazza San Pietro

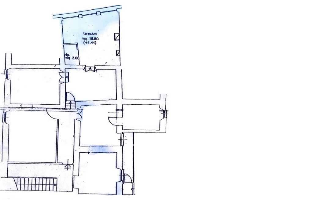
Nel caratteristico centro storico di Frascati, a pochi passi da Piazza San Pietro, proponiamo in vendita un attico posto al terzo ed ultimo piano di un edificio d’epoca.

L’immobile è composto da:

ingresso

soggiorno con angolo cottura

tre camere da letto

bagno

ampio terrazzo panoramico di circa 20 mq e balcone.

L’appartamento è da ristrutturare internamente, con la possibilità di creare ambienti più comodi e funzionali secondo le proprie esigenze.

La posizione centrale e panoramica, unita alla luminosità e alla presenza di un ampio terrazzo, rendono questa soluzione ideale sia come abitazione principale che come investimento nel cuore di Frascati.

📍 Zona: Centro storico – adiacente Piazza San Pietro
🏠 Piano: Terzo (attico)
📐 Superficie esterna: terrazzo di 20 mq + balcone
🔧 Stato: Da ristrutturare, con possibilità di nuova distribuzione interna


Dettagli Proprietà
  • Nazione: Italia
  • Regione: Lazio
  • Provincia: ROMA
  • Comune: Frascati
  • Località: Centro
  • Mq: 80
  • N. Vani: 6
  • N. Camere: 3
  • N. Bagni: 2
  • Tipologia: Appartamenti
  • Piano: 3
  • Terrazzo (mq): 20
  • Giardino (mq):
  • Ascensore: No
  • Piscina: No
  • Stato: Libero al Rogito
  • Accesso: Pianerottolo
  • Riscaldamento: Autonomo
  • Posto Auto: -----
  • Vista Panoramica: Si

Classe Energetica
  • Indice Prestazione Energetica: N.D.