PALESTRINA: APPARTAMENTO DUPLEX RISTRUTTURATO CON BOX AUTO

Palestrina (RM) Codice: RM12498 90mq
€ 165.000,00
Descrizione

Mediazionecasa propone in vendita, nel Comune di Palestrina, e precisamente in via Gabriele d’Annunzio, all’interno di un edificio in corso di riqualificazione e dotato di ascensore, proponiamo in vendita un appartamento duplex di 90 mq, posto al piano terzo e quarto, recentemente ristrutturato e pronto per essere abitato.
L'immobile si distingue per la sua ottima organizzazione degli spazi interni e per la notevole luminosità, grazie alla doppia esposizione e alla presenza di ampie superfici finestrate.
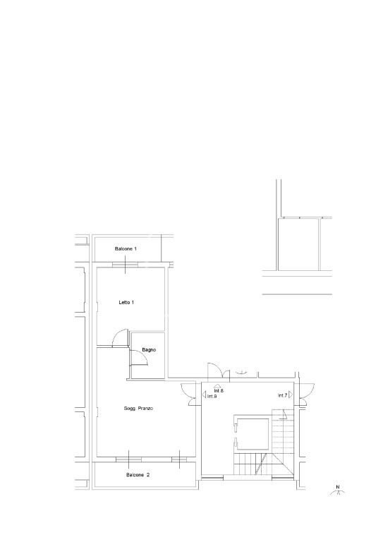
L’ingresso si apre su un ampio e accogliente salone, servito da una portafinestra che conduce al primo balcone, dove è stata predisposta una comoda zona lavanderia. A seguire, troviamo un ampio angolo cottura, perfetto per chi ama vivere gli spazi della casa con funzionalità e comfort.
La zona notte è ben disimpegnata e comprende una camera da letto matrimoniale, dotata di balcone privato e un bagno fornito di box doccia. L’immobile sarà completato con la realizzazione di una scala per poter accedere al piano sovrastante, dove troviamo un unico ambiente mansardato, spazio funzionale da adibire a magazzino, studio o eventualmente seconda camera da letto.
Completa la proprietà un box auto privato, elemento di valore aggiunto per comodità e sicurezza.
La posizione dell'immobile è strategica: nel raggio di pochi km si trovano tutti i principali servizi offerti dal Comune di Palestrina, tra cui scuole, supermercati, trasporti pubblici e strutture sanitarie.
Un’ottima soluzione abitativa per famiglie, giovani coppie o come investimento di qualità, in un contesto in fase di valorizzazione.





Dettagli Proprietà
  • Nazione: Italia
  • Regione: Lazio
  • Provincia: ROMA
  • Comune: Palestrina
  • Località: Palestrina
  • Mq: 90
  • N. Vani: 3
  • N. Camere: 2
  • N. Bagni: 1
  • Tipologia: Appartamenti
  • Piano: 1
  • Terrazzo (mq):
  • Giardino (mq):
  • Ascensore: Si
  • Piscina:
  • Stato: Libero
  • Accesso: Altro
  • Riscaldamento: Autonomo
  • Posto Auto: Box Auto
  • Vista Panoramica:

Classe Energetica
  • Indice Prestazione Energetica: N.D.

Planimetrie