PALESTRINA APPARTAMENTO CON BOX AUTO E CANTINA

Palestrina (RM) Codice: RM12810 90mq
€ 149.000,00
Richiedi Informazioni
* Consenso al trattamento; Informativa sulla privacy
Invia
Descrizione

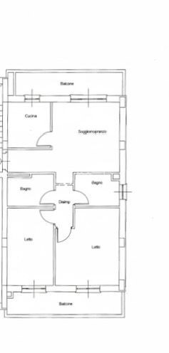
Mediazionecasa propone in vendita appartamento a Palestrina, posto al primo piano di uno stabile servito da ascensore.
L’immobile è composto da salone, cucina semi abitabile, camera matrimoniale, cameretta e doppi servizi. Si presenta in buono stato manutentivo è stato appena ritinteggiato ed è dotato di riscaldamento autonomo.
Grazie alla doppia esposizione, l’appartamento gode di un’ottima luminosità durante tutto l’arco della giornata e dispone di due ampi balconi, uno per ciascun lato dello stabile. Particolarmente comodo e vivibile il balcone con accesso diretto dal salone e dalla cucina, ideale per momenti di relax o per pranzi e cene all’aperto.
Lo stabile è dotato di ascensore con accesso diretto al piano seminterrato, dove troviamo un box auto di proprietà, comodo per il parcheggio di auto e mezzi a due ruote, oltre a una cantina di circa 6 mq.
Soluzione libera subito, ideale per chi è alla ricerca di ambienti funzionali, spazi esterni vivibili e della comodità del box auto.


Dettagli Proprietà
  • Nazione: Italia
  • Regione: Lazio
  • Provincia: ROMA
  • Comune: Palestrina
  • Località: Palestrina
  • Mq: 90
  • N. Vani: 3
  • N. Camere: 2
  • N. Bagni: 1
  • Tipologia: Appartamenti
  • Piano: Primo Piano
  • Terrazzo (mq):
  • Giardino (mq):
  • Ascensore: Si
  • Piscina:
  • Stato: Libero
  • Accesso: Pianerottolo
  • Riscaldamento: Autonomo
  • Posto Auto: Box Auto
  • Vista Panoramica: Si

Classe Energetica
  • Indice Prestazione Energetica: N.D.