SAN GIOVANNI VIA SATRICO APPARTAMENTO AMPIA METRATURA PREDISPOSTO PER B&B

ROMA (RM) Codice: RM12710 110mq
€ 600.000,00
Richiedi Informazioni
* Consenso al trattamento; Informativa sulla privacy
Invia
Descrizione

Mediazionecasa propone in vendita a Roma, nel cuore del quartiere Appio Latino, a pochi passi da San Giovanni, un ampio appartamento al terzo piano di una palazzina elegante e ben curata.

L'immobile, recentemente ristrutturato, è perfetto per chi desidera avviare un'attività di affittacamere o B&B, grazie alla sua distribuzione funzionale e alle ampie metrature. Inoltre, si presta ottimamente anche per nuclei familiari numerosi, grazie alla generosa superficie e alla disposizione degli spazi.

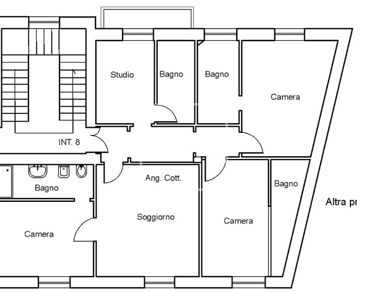
La disposizione interna è così suddivisa:

Salone spazioso con angolo cottura, ideale per accogliere gli ospiti o per godersi momenti di convivialità in famiglia.

Quattro camere, ciascuna con accesso ai rispettivi bagni, pensate per garantire la massima privacy e comfort.

Quattro bagni di ottima fattura, recentemente rinnovati, con finiture moderne e funzionali.

Balconcino che affaccia sulla tranquilla via, ideale per rilassarsi nei momenti di pausa.

L'appartamento si presenta in ottime condizioni, con pavimenti in gres porcellanato, infissi nuovi e impianti a norma, pronto per essere abitato o utilizzato per attività ricettive. La zona è ben servita dai mezzi pubblici e da tutte le principali attività commerciali, rendendola particolarmente interessante per un investimento a lungo termine, ma anche perfetta per famiglie che desiderano ampi spazi abitativi.

Non perdere l'opportunità di visitare questo immobile versatile. Per maggiori informazioni o per fissare un appuntamento, contattaci subito!


Dettagli Proprietà
  • Nazione: Italia
  • Regione: Lazio
  • Provincia: ROMA
  • Comune: ROMA
  • Località: San Giovanni
  • Mq: 110
  • N. Vani: 6
  • N. Camere: 4
  • N. Bagni: 4
  • Tipologia: Appartamenti
  • Piano: terzo
  • Terrazzo (mq):
  • Giardino (mq):
  • Ascensore: No
  • Piscina: No
  • Stato: Libero al Rogito
  • Accesso: Pianerottolo
  • Riscaldamento: Centralizzato
  • Posto Auto: -----
  • Vista Panoramica:

Classe Energetica
  • Indice Prestazione Energetica: N.D.