ROMA: LOCALE COMMERCIALE FRONTE METRO C GARDENIE CON CORTE

ROMA (RM) Codice: RM12714 55mq
€ 109.000,00
Descrizione

Mediazionecasa propone in vendita nel cuore pulsante del quartiere Centocelle, precisamente in Via delle Resede, un locale commerciale ad altissima visibilità, situato esattamente di fronte alla fermata della Metro C Gardenie.
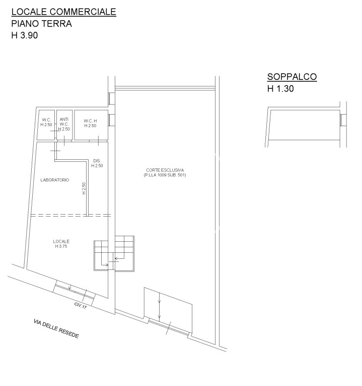
L’immobile si sviluppa su una superficie interna di 55 mq, composto da un unico ambiente commerciale con area laboratorio e 2 bagni di cui una disabili, caratterizzata da un layout versatile che si presta a molteplici attività professionali o commerciali.
Il vero punto di forza della proprietà è la splendida corte privata di 60 mq, uno spazio esterno esclusivo introvabile in zona, ideale per esposizioni, dehors o area accoglienza.

Caratteristiche principali:
• Posizione Unica: Altissimo passaggio pedonale e veicolare grazie alla vicinanza immediata della metropolitana.
• Superficie Interna: 55 mq ben distribuiti.
• Spazio Esterno: Corte privata di 60 mq ad uso esclusivo.
• Servizi: Zona servitissima e collegamenti rapidi con il centro città.

Una soluzione rara che coniuga visibilità e spazi esterni privati.
Libero da subito.

Guarda il video dell’immobile al seguente link:
https://youtu.be/oYvAkzh2tOU

Cod. imm. 109NE


Dettagli Proprietà
  • Nazione: Italia
  • Regione: Lazio
  • Provincia: ROMA
  • Comune: ROMA
  • Località: Centocelle
  • Mq: 55
  • N. Vani: 2
  • N. Camere: 1
  • N. Bagni: 2
  • Tipologia: Locali Commerciali
  • Piano: terra
  • Terrazzo (mq):
  • Giardino (mq): 60
  • Ascensore: No
  • Piscina: No
  • Stato: Libero
  • Accesso: Indipendente
  • Riscaldamento: Autonomo
  • Posto Auto: -----
  • Vista Panoramica: No

Classe Energetica
  • Indice Prestazione Energetica: N.D.

Planimetrie