APPARTAMENTO INDIPENDENTE CON GIARDINO E BOX

ROMA (RM) Codice: RM12915 141mq
€ 210.000,00
Via Trebbia 5 00040 - Torvaianica (ROMA)
3497243585
torvaianica@mediazionecasa.com
Richiedi Informazioni
* Consenso al trattamento; Informativa sulla privacy
Invia
Descrizione

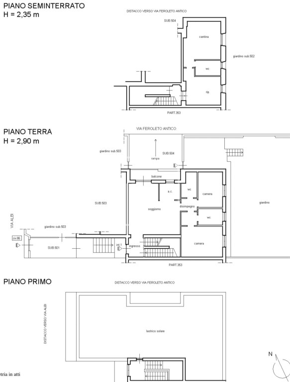
Centro Giano proponiamo la vendita di un Appartamento indipendente su 3 livelli con giardino e box.

Al piano terra ci accoglie un salone con angolo cottura, 2 camere da letto, 2 bagni, 1 balcone.
Al primo piano troviamo una zona lavanderia e un terrazzo di circa 100mq.
Al piano seminterrato la sala hobby, composta da soggiorno con angolo cottura, 1 camera, 1 bagno e 1 box. di circa mq.15.
La sala hobby ha doppio accesso diretto dall'abitazione che dal box auto. Perfetto per chi cerca praticità e indipendenza.
Completà la proprietà un giardino di circa mq.100 per trascorrere momenti di relax e convivialità.
L'immobile è situato in una posizione, strategica .tra la via del mare e la via ostiense dalle quali è facile raggiungere il centro città e il litorale, servita dai mezzi pubblici e dal treno Roma- Lido, la stazione Casal Bernocchi è facilmente raggiungibile. Inoltre proprio nella via Albi, dove è situato l’immobile troviamo la fermata dell’autobus e i negozi di prima necessità.



Dettagli Proprietà
  • Nazione: Italia
  • Regione: Lazio
  • Provincia: ROMA
  • Comune: ROMA
  • Località: Acilia
  • Mq: 141
  • N. Vani: 6
  • N. Camere: 3
  • N. Bagni: 2
  • Tipologia: Ville e Case Indipendenti
  • Piano: TERRA
  • Terrazzo (mq): 100
  • Giardino (mq): 100
  • Ascensore: No
  • Piscina: No
  • Stato: Libero al Rogito
  • Accesso: Semi-Indipendente
  • Riscaldamento: Autonomo
  • Posto Auto: Box Auto
  • Vista Panoramica: Si

Classe Energetica
  • Indice Prestazione Energetica: 175