Scarica App:  

TORPIGNATTARA – ATTICO CON TERRAZZO IN EDIFICIO STORICO UNICO NEL QUARTIERE

ROMA (RM) Codice: RM12655 100mq
€ 270.000,00
Piazza Bernardo Zamagna 11 00143 - Fonte Meravigliosa (ROMA)
0651957186
rv@mediazionecasa.com
Richiedi Informazioni
* Consenso al trattamento; Informativa sulla privacy
Invia
Descrizione

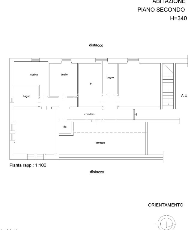
Proponiamo in vendita un attico di 100 mq con terrazzo, posto al secondo ed ultimo piano di un affascinante edificio in cortina dei primi del ’900, caratterizzato da un’architettura che richiama quella di un castello. L’accesso avviene attraverso un vialetto riservato che conduce a un tranquillo spazio condominiale, assicurando privacy e un’atmosfera silenziosa, lontana dai rumori della città. La metratura interna è di 80 mq netti ed è distribuita in ingresso e corridoio, due camere matrimoniali, due bagni, uno studio, un soggiorno, un ripostiglio e il terrazzo di mq. 28, con affaccio libero.
La proprietà è completamente da ristrutturare, offrendo ampie possibilità di personalizzazione e ridistribuzione degli spazi interni. Le finestre del soggiorno sono ad arco (centinate), i pavimenti sono tipici dell’epoca.
Il quartiere è situato nel Municipio V lungo l’asse di Via Casilina, è uno dei quartieri più vivaci, caratterizzato da una forte presenza multietnica. Ben collegato con il centro, offre una vasta gamma di servizi, attività commerciali e mezzi di trasporto. Dal 1981 ospita anche l’ospedale Vannini Figlie di San Camillo.
Il nome del quartiere deriva dal Mausoleo di Sant’Elena, soprannominato nel linguaggio popolare Torre delle Pignatte: durante la sua costruzione furono inserite nel calcestruzzo delle anfore (“pignatte”) per alleggerire la struttura, da cui l’evoluzione del nome in Torpignattara.
La nostra mission è seguire il cliente in ogni passo della vendita a 360 gradi, è accompagnarlo durante tutto il percorso con trasparenza e attenzione fino al rogito notarile.
Per ulteriori informazioni o per fissare un appuntamento, siamo a completa disposizione.


Dettagli Proprietà
  • Nazione: Italia
  • Regione: Lazio
  • Provincia: ROMA
  • Comune: ROMA
  • Località: Torpignattara
  • Mq: 100
  • N. Vani: 6
  • N. Camere: 4
  • N. Bagni: 2
  • Tipologia: Appartamenti
  • Piano: 2
  • Terrazzo (mq): 28
  • Giardino (mq):
  • Ascensore: No
  • Piscina: No
  • Stato: Libero
  • Accesso: Pianerottolo
  • Riscaldamento: Autonomo
  • Posto Auto: -----
  • Vista Panoramica: No

Classe Energetica
  • Indice Prestazione Energetica: 3,5

Planimetrie