VENDITA APPARTAMENTO A REDDITO ADIACENTE AL CAMPUS BIOMEDICO

ROMA (RM) Codice: RM12793 85mq
€ 290.000,00
Piazza Bernardo Zamagna 11 00143 - Fonte Meravigliosa (ROMA)
0651957186
rv@mediazionecasa.com
Richiedi Informazioni
* Consenso al trattamento; Informativa sulla privacy
Invia
Descrizione

In zona Trigoria e più precisamente Via Guglielmo Guasta, proponiamo in vendita appartamento in proprietà superficiaria di 85 mq, posto al terzo piano di una palazzina in cemento armato, rifinita ad intonaco e costruita nel 2016.
L’immobile si presenta in ottimo stato manutentivo ed è composto di:

• soggiorno a vista con angolo cottura
• balcone vivibile
• due camere matrimoniali
• studio
• bagno finestrato

La soluzione è dotata di infissi in legno con doppi vetri, videocitofono, riscaldamento autonomo, condizionatori caldo/freddo, pavimentazione in gres ed esposizione nord-est. Classe energetica A4
Completano la proprietà una cantina e un box auto di 17 mq con serranda basculante, entrambi situati al piano seminterrato dello stabile.
Nelle spese condominiali sono comprese i costi del riscaldamento.
La posizione è strategica, a pochi minuti a piedi dal Campus Biomedico di Roma, importante polo universitario e sanitario che assicura una domanda locativa costante, rendendo l’immobile particolarmente interessante come uso investimento.
Attualmente l’appartamento è locato a due studenti con contratto a canone concordato, garantendo una rendita annua pari a € 10.800,00. Rendimento lordo: circa 3,7% annuo
Soluzione ideale sia per abitazione principale sia per chi cerca un immobile già a reddito.
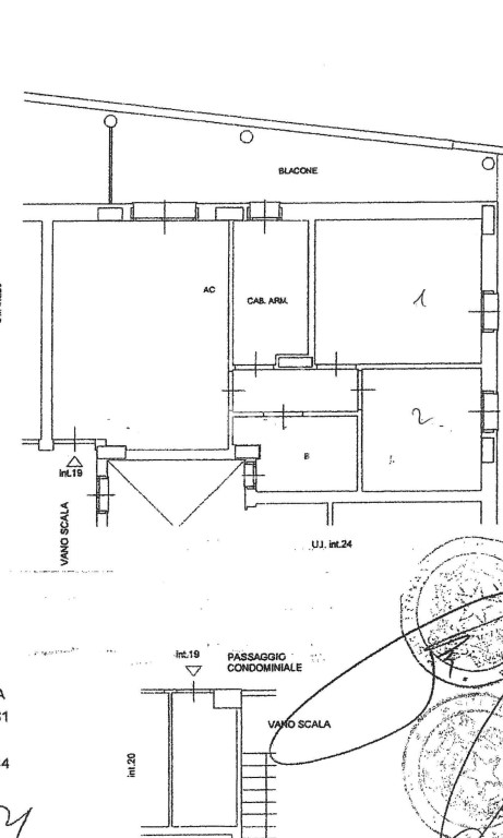
Le informazioni e le planimetrie di questo annuncio sono indicative e non costituiscono elementi contrattuali.


Dettagli Proprietà
  • Nazione: Italia
  • Regione: Lazio
  • Provincia: ROMA
  • Comune: ROMA
  • Località: Trigoria
  • Mq: 85
  • N. Vani: 4
  • N. Camere: 2
  • N. Bagni: 1
  • Tipologia: Appartamenti
  • Piano: 3
  • Terrazzo (mq):
  • Giardino (mq):
  • Ascensore: Si
  • Piscina: No
  • Stato: Affittato
  • Accesso: Pianerottolo
  • Riscaldamento: Centralizzato
  • Posto Auto: Box Auto
  • Vista Panoramica: Si

Classe Energetica
  • Indice Prestazione Energetica: 3,5

Planimetrie