VENDITA BOX AUTO MQ. 30 VIA MELEGNANO

ROMA (RM) Codice: RM12740 30mq
€ 29.000,00
Piazza Bernardo Zamagna 11 00143 - Fonte Meravigliosa (ROMA)
0651957186
rv@mediazionecasa.com
Richiedi Informazioni
* Consenso al trattamento; Informativa sulla privacy
Invia
Descrizione

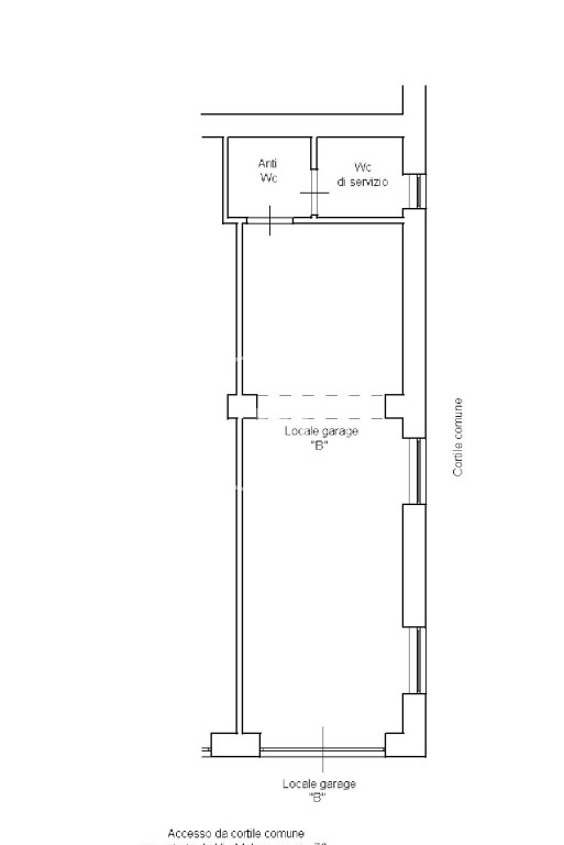
In zona Labaro, e più precisamente in Via Melegnano, proponiamo in vendita un box auto di circa 30 mq, situato all’interno di una palazzina di soli tre piani. Il box è dotato di serranda elettrica, tre finestre che garantiscono aerazione naturale e un bagno.
L'accesso è indipendente e garantisce l'utilizzo 24 ore su 24, risultando comodo e sicuro in ogni momento della giornata. Soluzione ideale in una zona dove il parcheggio è particolarmente difficoltoso e le strade sono strette, rendendo il box un valore aggiunto sia per uso personale che come investimento. Ottimo anche come spazio deposito. Disponibile da subito. Per informazioni e appuntamenti


Dettagli Proprietà
  • Nazione: Italia
  • Regione: Lazio
  • Provincia: ROMA
  • Comune: ROMA
  • Località: Prima Porta
  • Mq: 30
  • N. Vani: 0
  • N. Camere: 0
  • N. Bagni: 1
  • Tipologia: Box
  • Piano: terra
  • Terrazzo (mq):
  • Giardino (mq):
  • Ascensore: No
  • Piscina: No
  • Stato: Libero al Rogito
  • Accesso: Indipendente
  • Riscaldamento: -----
  • Posto Auto: Box Auto
  • Vista Panoramica: No

Classe Energetica
  • Classe Energetica: N.D.
  • Indice Prestazione Energetica: N.D.

Planimetrie