Scarica App:  

ANZIO COLLE COCCHINO

Anzio (RM) Codice: RM12613 100mq
€ 300.000,00
Via Roberto Michels 34 00177 - Roma (ROMA)
0669360831
3792329885
collatina@mediazionecasa.com
Richiedi Informazioni
* Consenso al trattamento; Informativa sulla privacy
Invia
Descrizione

Anzio Colle Cocchino

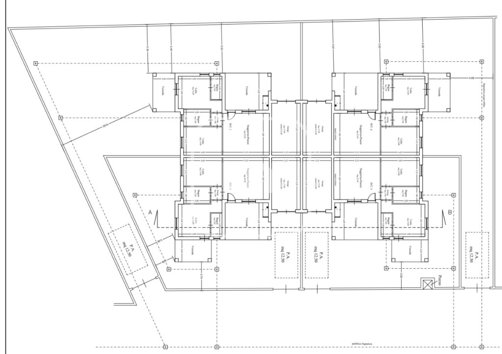
Proponiamo in vendita porzioni di ville quadrifamiliari - Nuova Costruzione - consegna gennaio 2026.
Le nostre soluzioni presentano una metratura di circa 100 mq, si sviluppano su unico livello, tutte con accesso carrabile diretto da Via Colle Paradiso.

Ogni unità è dotata di un ampio salone con angolo cottura e una porta finestra che conduce direttamente alla veranda. Seguendo dal disimpegno accediamo all'ampio bagno finestrato e alle due camere da letto, di cui una con bagno privato e finestrato.
La suddivisione ottimale degli spazi rende la nostra soluzione adatta per ogni tipo ti esigenza.
Con rifiniture di primissima scelta è la soluzione perfetta per chi cerca un'abitazione all'avanguardia, offrendo una classe energetica A4.
Dispone quindi di impianto fotovoltaico 3KW per la produzione di energia elettrica, Impianto di climatizzazione caldo / freddo, pompa di calore aria acqua, che permette un consumo energetico ridotto, predisposizione impianto di allarme, persiane in ferro zincato, finestre in pvc vetrocamera basso emissivo ideali per favorire un elevato comfort termico,

Completa l'offerta un box auto privato di 18 mq e un posto auto interno scoperto. Con giardini di varie metrature e la possibilità di creare una serra bioclimatica o una piscina, questo è il luogo ideale per chi cerca un equilibrio tra comfort e sostenibilità

Contattaci per una visita!
E se per tuo il acquisto hai bisogno di un mutuo il nostro consulente saprà guidarti sulla scelta su misura per te.


Dettagli Proprietà
  • Nazione: Italia
  • Regione: Lazio
  • Provincia: ROMA
  • Comune: Anzio
  • Località: Colle Cocchino
  • Mq: 100
  • N. Vani: 3
  • N. Camere: 2
  • N. Bagni: 2
  • Tipologia: Ville e Case Indipendenti
  • Piano: terra
  • Terrazzo (mq):
  • Giardino (mq):
  • Ascensore: No
  • Piscina: No
  • Stato: In corso di costruzione
  • Accesso: Indipendente
  • Riscaldamento: Autonomo
  • Posto Auto: Box Auto
  • Vista Panoramica: No

Classe Energetica
  • Indice Prestazione Energetica: N.D.