Scarica App:  

CAVE: FABBRICATO DA RISTRUTTURARE CON TERRENO UNICO LIVELLO

Cave (RM) Codice: RM12618 130mq
€ 39.000,00
Descrizione

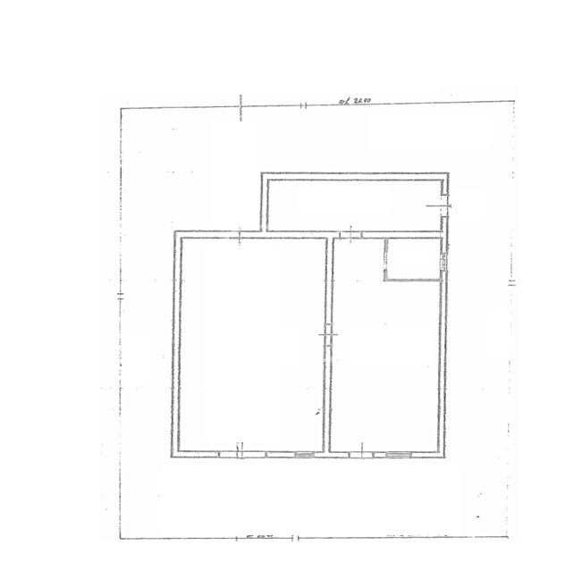
Mediazionecasa propone in vendita nel comune di Cave, in via Cerreto, un fabbricato di circa 130 mq sviluppato su un unico livello con terreno esclusivo di 1100 mq.

L’immobile si presenta da ristrutturare ed è attualmente composto da un ampio salone con angolo cottura e camino a legna, un bagno, una camera matrimoniale, una cantina e una grotta.

Questa proprietà rappresenta una vera opportunità per chi desidera creare la propria casa ideale immersa nella tranquillità, ma a pochi minuti dai principali servizi. Grazie alla sua metratura e alla disposizione su un solo livello, l’abitazione offre un grande potenziale: una volta ristrutturata, può diventare una splendida villa di 130 mq composta da un luminoso salone con angolo cottura, due camere matrimoniali e due bagni, garantendo comfort e funzionalità in ogni ambiente.

In alternativa, il fabbricato può essere demolito e ricostruito, consentendo la realizzazione di una nuova villa unifamiliare moderna e completamente conforme alle normative attuali in materia di sicurezza, risparmio energetico ed efficienza abitativa.

La zona è particolarmente apprezzata per la sua posizione strategica: si trova infatti a soli 1 km dal centro del paese di Cave e a circa 5 km da Valmontone, dove sono presenti l’ingresso dell’autostrada A1 e la stazione ferroviaria, ideali per chi necessita di spostarsi quotidianamente verso Roma o i comuni limitrofi.

Un immobile con grandi potenzialità, perfetto per chi cerca indipendenza, spazio e la possibilità di personalizzare ogni dettaglio secondo il proprio gusto.

Guarda il video dell’immobile al seguente link:
https://youtu.be/i0o5HNlBsp4

Cod. imm. 39AP


Dettagli Proprietà
  • Nazione: Italia
  • Regione: Lazio
  • Provincia: ROMA
  • Comune: Cave
  • Località: Cave
  • Mq: 130
  • N. Vani: 3
  • N. Camere: 2
  • N. Bagni: 1
  • Tipologia: Ville e Case Indipendenti
  • Piano: TERRA
  • Terrazzo (mq):
  • Giardino (mq): 1100
  • Ascensore:
  • Piscina:
  • Stato: Libero
  • Accesso: Indipendente
  • Riscaldamento: -----
  • Posto Auto: Posto auto scoperto
  • Vista Panoramica:

Classe Energetica
  • Indice Prestazione Energetica: N.D.

Planimetrie