Scarica App:  

GROTTAFERRATA : IMMOBILE DI LUSSO

Rocca di Papa (RM) Codice: RM12560 150mq
€ 480.000,00
Richiedi Informazioni
* Consenso al trattamento; Informativa sulla privacy
Invia
Descrizione

Villa di Prestigio ai Confini tra Rocca di Papa e Grottaferrata

Design, comfort e tecnologia in un contesto esclusivo

In posizione invidiabile, al confine tra Rocca di Papa e Grottaferrata, proponiamo in vendita una villa unifamiliare di nuova ristrutturazione (2024), inserita in un elegante contesto residenziale privato, accessibile da cancello domotico, con vialetto alberato e circondata da ville a schiera.

La proprietà offre ampie metrature, finiture di lusso, tecnologie domotiche all’avanguardia e un’elevata qualità abitativa.


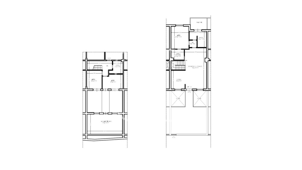
Distribuzione degli spazi
Piano Superiore (Ingresso principale):
Giardino privato finemente curato con siepi e prato
Ampio salone con parquet, termocamino elettrico di design, mobili su misura, pannelli fonoassorbenti in legno e rivestimenti in marmo Dekton nero
Cucina open space di alta gamma, firmata Doimo Cucine, con elementi in legno e marmo Dekton, penisola con gamba in vetro cristallizzato coordinata alla scala interna
Camera da letto matrimoniale con letto su misura in velluto lavabile, comodini incassati, pannelli fonoassorbenti su misura e specchio integrato
Stanzino multifunzione, utilizzabile come ripostiglio, lavanderia o cabina armadio
Bagno finestrato con antibagno, box doccia oversize, lavabo design Jacuzzi sospeso dal soffitto
Balcone

Piano Inferiore (zona notte):
Seconda camera matrimoniale, con letto in velluto lavabile realizzato su misura
Cameretta
Bagno in marmo di Carrara vetrificato, con vasca freestanding di design
Cabina armadio di 25 mq, completamente realizzata su misura da falegname artigiano, con zona lavanderia integrata
Due giardini d’inverno che affiancano una vetrata termica panoramica nel corridoio
Garage con scaffalature certificate e accesso diretto all’abitazione

Dotazioni e Comfort
Posti auto esterni N.2 oltre al garage interno
Impianto di allarme domotico Comelit con telecamere smart poste sia all’ingresso principale che al garage
Citofono domotico
Climatizzazione a pompa di calore con fan coil, completamente gestibile da remoto
Predisposizione impianto fotovoltaico
Impianto di depurazione acqua centralizzato con filtrazione diretta anche in cucina
Zanzariere scorrevoli su ogni infisso
Inferriate di sicurezza
Box in alluminio per copertura caldaia e depuratore
Vetrata scala in vetro cristallizzato, coordinata alla cucina

Note aggiuntive:
La villa è completamente nuova, acquistata e ristrutturata nel 2024 con materiali di altissimo pregio, venduta con l'arredo completo.
Questa proprietà è ideale per chi cerca una residenza moderna, elegante e altamente funzionale, immersa nella tranquillità ma a pochi minuti da tutti i servizi e collegamenti principali


Dettagli Proprietà
  • Nazione: Italia
  • Regione: Lazio
  • Provincia: ROMA
  • Comune: Rocca di Papa
  • Località: Rocca di Papa
  • Mq: 150
  • N. Vani: 4
  • N. Camere: 3
  • N. Bagni: 2
  • Tipologia: Ville e Case Indipendenti
  • Piano: T - S1
  • Terrazzo (mq):
  • Giardino (mq): 40
  • Ascensore: No
  • Piscina: No
  • Stato: Libero
  • Accesso: Semi-Indipendente
  • Riscaldamento: Autonomo
  • Posto Auto: Posto auto scoperto
  • Vista Panoramica: No

Classe Energetica
  • Classe Energetica: N.D.
  • Indice Prestazione Energetica: N.D.