SAN CESAREO: VILLA ANGOLARE OTTIMO STATO CON PORTICO E GIARDINO

San Cesareo (RM) Codice: RM12685 60mq
€ 214.000,00
Descrizione

Mediazionecasa propone in vendita, nel Comune di San Cesareo, nella richiestissima zona di Colle del Noce e precisamente in Via Sibilla Aleramo, una villa angolare sviluppata su due livelli con giardino privato.

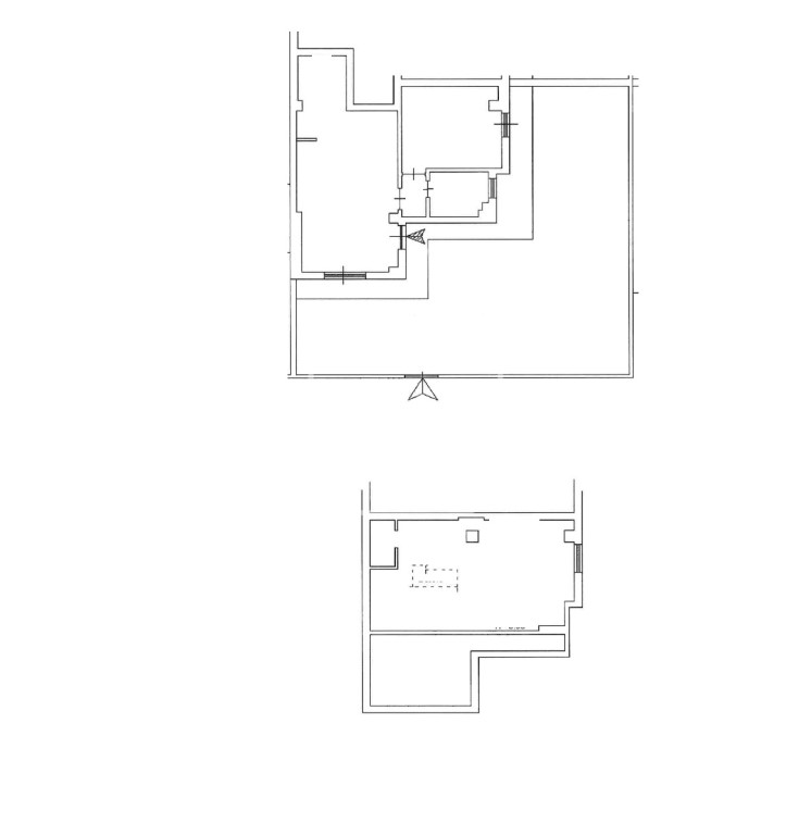
L’immobile si presenta in perfette condizioni interne e offre ambienti ampi, luminosi e funzionali. Al piano terra troviamo un salone con angolo cottura comodo e spazioso, una camera matrimoniale e un bagno finestrato; tutti gli ambienti hanno accesso diretto al giardino privato, in parte mattonato e in parte lasciato a verde, dove è presente uno splendido porticato, ideale per trascorrere piacevoli momenti conviviali all’aperto.

Al piano superiore si sviluppa una grande camera con bagno en-suite, attualmente utilizzata come cabina armadio ma perfettamente adatta a essere una seconda matrimoniale luminosa e confortevole. Completano la proprietà un posto auto coperto di proprietà e una cantina.

La casa è pronta per essere abitata: è stata ristrutturata recentemente, con pavimenti in gres porcellanato di ottima fattura, impianti idraulici ed elettrici revisionati e infissi di qualità che garantiscono comfort e isolamento.

La zona di Colle del Noce è servitissima e consente di raggiungere a piedi tutti i servizi di primaria necessità, oltre a disporre di ampie aree verdi, parchi per bambini e area dedicata ai cani. La posizione è inoltre strategica per chi ogni giorno deve raggiungere la capitale: il casello autostradale si trova a soli 1,5 km, assicurando collegamenti rapidi pur vivendo in un contesto tranquillo, residenziale e completo di ogni comodità.

Guarda il video dell’immobile al seguente link:
https://youtu.be/0_skg58Vj9A

Cod. imm. 214FP



-


Dettagli Proprietà
  • Nazione: Italia
  • Regione: Lazio
  • Provincia: ROMA
  • Comune: San Cesareo
  • Località: San Cesareo
  • Mq: 60
  • N. Vani: 3
  • N. Camere: 2
  • N. Bagni: 2
  • Tipologia: Ville e Case Indipendenti
  • Piano: T-1
  • Terrazzo (mq):
  • Giardino (mq): 30
  • Ascensore:
  • Piscina:
  • Stato: Occupato
  • Accesso: Indipendente
  • Riscaldamento: Autonomo
  • Posto Auto: Posto auto coperto
  • Vista Panoramica:

Classe Energetica
  • Indice Prestazione Energetica: N.D.

Planimetrie